不銹鋼螺旋上料機是工業生產過程中經常用到的設備,因其故障率低、拆卸清洗簡單、自動化程度高,故在粉料的輸送過程中經常使用到,因其結構形式多樣,為給朋友們選擇螺旋提升機提高方便,今天我們將各種螺旋提升機的圖片綜合一下,并簡單分析各自的優劣,希望對你選擇不銹鋼螺旋上料機有所幫助。

圖片說明:該種類型為不銹鋼圓斗傾斜式螺旋上料機,可以與包裝機等設備配套使用,實現加料過程的自動化,圓斗料倉,更易于將物料輸送干凈。該型號螺旋上料機外觀漂亮,清洗方便。
特點:
1、該CY-T1型螺旋提升機能夠提升多種粉劑和顆粒類物料,裝料倉與絞龍均為不銹鋼制成;
2、上料電機、振動電機各自開關控制振動幅度可調,整條螺旋可以方便拆裝、清洗。
3、該機具有自動加料、自動停止(獨立使用需要加裝我公司的控制系統,以期完成自動加料功能)
4、螺旋及料桶與料倉之間軟連接,拆卸輕松;
5、料筒下端有活門及正反轉開關,清洗方便;
6、料倉加配振動電機,使物料輕松自動進入螺旋。

說明:該種型號為方斗不銹鋼螺旋上料機,儲料倉外觀為方形,相對于圓形螺旋上料機,該螺旋提升機在加工過程中,工藝相對簡單,成本也就較低,加裝了電磁振動器,物料輸送也是比較干凈的。
技術參數:
提升量:1000-3000Kg/H
料箱容積:100-300Kg
上料高度:1600mm(高度可根據用戶定制)
電壓功率:AC380v 1100W(可定制220v)
整機重量:150kg

垂直不銹鋼螺旋上料機圖片的說明:該種型號的螺旋上料機,采用垂直式上料,相對于傾斜式的l螺旋提升機,占地面積比較小,相對于傾斜式的螺旋上料機,輸送效率稍微低些。要提高效率,可以加裝水平強推機構。
產品補充說明:
螺旋提升機是靠電機產生動力,帶動擺線減速機傳動到螺旋器,是一種利用螺旋旋轉使物料向前擠壓,同時使物料產生向前的推動,螺旋上料從進料口進料經螺旋器強制性使物料輸送到出料口.
該螺旋提升機既可與我公司的系列包裝機配套使用,完成自動加料功能;又可獨立使用為混合機、注塑機等有一定高度要求的設備自動供料。

圖片說明:該型號為加裝了水平強推機構的垂直不銹鋼螺旋上料機,先水平螺旋輸送,再垂直螺旋提升,適用于流動性較好的粉體物料的輸送。

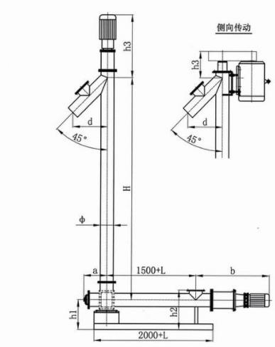
圖片說明:該圖片上的螺旋提升機,很好的展示了客戶再訂購不銹鋼螺旋上料機時,需要提高適合自己的輸送高度、輸送角度、螺旋管徑、料倉的尺寸,為您選購螺旋上料機時提供圖片參考。




客服1