鄭州杰凱系螺旋輸送機專業生產廠家,為滿足用戶給多臺設備加料的需要,我司設計了移動螺旋輸送機,該機可分為傾斜式和垂直式螺旋輸送機,適用于干散物料和不怕破碎物料輸送到一定水平距離和高度的場合,可據用戶現場環境,定制不同尺寸的移動螺旋輸送機,價格美麗,歡迎垂詢!

1、工作原理:
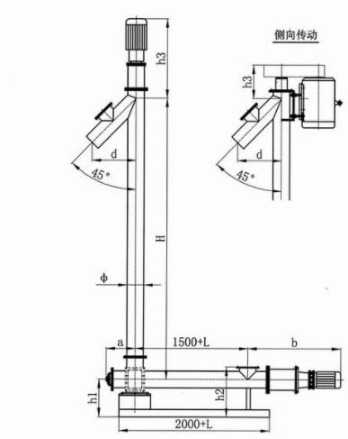
移動螺旋輸送機是靠電機產生動力,帶動擺線減速機傳動到螺旋器,是一種利用螺旋旋轉使物料向前擠壓,同時使物料產生向前的推動,螺旋上料機從進料口進料經螺旋器強制性使物料輸送到出料口
2、適用范圍:
2.1、適用與將物料提高到一定高度的情況下使用,例如與注塑機、混合機、定量包裝機、定量包裝秤等配套使用。
2.2、適宜使用的物料:干散性粉狀物料(如淀粉、面粉、添加劑、農藥、獸藥等);不怕破損的小顆粒物料(如:pvc顆粒、雞精、白糖、味精、小雜糧等)
2.3、不適宜使用的物料:超細粉、不允許有破損的小顆粒、有較高含水量及粘性的物料

3、移動螺旋輸送機可選傳動方式:
3.1、皮帶減速
3.2、鏈條減速
3.3、減速機減速
4、可選材質:碳鋼、201不銹鋼、304不銹鋼、316不銹鋼。
說明:不同材質是針對不同使用現場及物料特性而選擇的,一般腐蝕性較強的選擇316,食品級的選擇304不銹鋼,沒什么腐蝕性的選擇201不銹鋼。可根據用戶自身的條件進行選擇。
5、移動螺旋輸送機技術參數(通用型):
上料高度:1600mm (特殊要求可定制)
上料速度:1000-2000kg/h
電機功率:1.1kw
振動電機功率:0.15kw
螺旋管徑:∮114mm、(∮159mm、∮213mm、∮273mm 說明:不同的管徑是針對不同的輸送量進行配套選擇的)
移動螺旋輸送機減速方式:皮帶減速
料倉容積:120L
整機重量:150kg
設備尺寸(不含螺旋上料管的尺寸):860×755×840mm
產品綜述:
1、移動螺旋輸送機使用起來更方便,而且節約成本
2、全系設備均配置振動或者攪拌機構,有效解決物料搭橋問題
3、可選擇我司的自動控制系統,實現加料過程無人值守,節約人工成本
4、可定制不同管徑的移動螺旋輸送機


 
 
 
      

 客服1