螺旋給料機按照輸送形式的不同,可分為立式螺旋給料機和水平螺旋喂料機,立式螺旋給料機可將物料輸送到一定的水平距離和高度,水平螺旋喂料機可將物料輸送到一定水平距離外的受料設備,承接定制,價格優惠,歡迎垂詢!

常規立式螺旋給料機按照傾斜角度可分為30°、45°、55°等,如安裝環境特殊要求,可以定制任意角度的傾斜式螺桿上料機,該機設計合理、運行平穩、噪音小、故障率低。
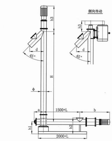
一、技術參數(通用型):
1. 上料高度:1600mm (特殊要求可定制)
2. 上料速度:1000-3000kg/h
3. 鄭州自動螺桿上料機電機功率:1.1kw
4. 振動電機功率:0.15kw
5. 螺旋管徑:∮114mm、(∮159mm、∮213mm、∮273mm 說明:不同的管徑是針對不同的輸送量進行配套選擇的)
6. 立式螺旋給料機減速方式:皮帶減速
7. 料倉容積:120L
8. 整機重量:150kg
9. 設備尺寸(不含螺旋上料管的尺寸):860×755×840m
10. 可以定制不同材料、不同管徑的水平螺桿喂料機
11. 可以選配自動上料功能
 
二、立式螺旋給料機可選傳動方式:
1. 皮帶減速
2. 鏈條減速
3. 減速機減速
4. 可選材質:碳鋼、201不銹鋼、304不銹鋼、316不銹鋼。
5. 說明:不同水平螺桿喂料機材質是針對不同使用現場及物料特性而選擇的,一般腐蝕性較強的選擇316,食品級的選擇304不銹鋼,沒什么腐蝕性的選擇201不銹鋼。可根據用戶自身的條件進行選擇。

產品綜述:
1、立式螺旋給料機又可分為傾斜式和垂直式兩種形式的送料,根據設備的安裝需求來進行選擇,傾斜式螺旋喂料機的角度一般不建議大于60°,特殊要求的可與我司技術工程師溝通,進行設計上的變通。
2、水平螺桿喂料機經常應用于點對點或者一點對多點情況下得物料輸送,可滿足一個或者多個點進料,多個點出料的生產需要,自動化程度高,操作簡單。
3、立式螺旋給料機可獨立使用,將物料輸送到相應的受料設備,也可與包裝機、混合機、注塑機、色選機等設備配合使用,提高相應設備的工作效率,減輕工人勞動強度。
4、通過在上料機的儲料倉上加裝振動電機或者加裝攪拌的形式,可有效解決物料輸送過程中,因物料自身的堆積而形成搭橋的問題。
5、通過在相關的受料設備上加裝阻旋式料位器或者光電檢測開關的方式,配合我司的自動上料控制系統,可實現水平螺桿喂料機上料過程的全自動化。
該設備一般是根據用戶具體使用環境、輸送物料特性來進行個性化定制的



 
 
 
      

 客服1